Обяви 0 За нас Контакти
Продава 2-СТАЕН
град Пловдив, Прослав
93 000 €
181 892.19 лв.

(1 257 €, 2 458.48 лв./m2)
Цената е с включено ДДС
История на цената
Коригирана в 15:48 на 28 април, 2026 год.
Обявата е посетена 249 пъти.
Площ:
74 m2
Етаж:
2-ри от 4
Строителство:
Тухла, Ще бъде въведен в експлоатация 2027 г.

Описание на имота:


БЕЗ КОМИСИОН

ЕЙЧ ЕЙЧ Пропърти предлага двустаен апартамент в новия жилищен комплекс в новата част на кв. Прослав - бутиков проект с ниско строителство, състоящ се от 4 сгради на 4 етажа, с по 3 апартамента на етаж, осигуряващ спокойна и уютна жилищна среда.

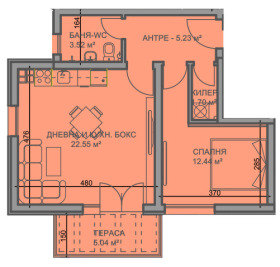
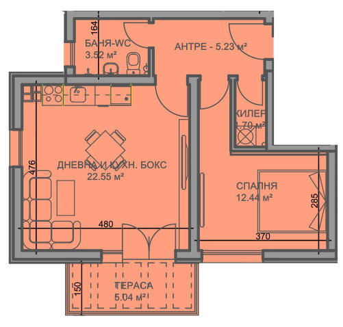
Имотът е на трети жилищен етаж, разположен в сграда 3, с площи както следва:
Обща площ апартамент - 73,82 кв.м
Чиста площ апартамент - 62,10 кв.м

Изложение - Запад / Север

Разпределение:
дневна с кухненски бокс, спалня, баня с тоалетна, килер, антре и тераса.

Комплексът предлага подземно и надземно паркиране, зони за отдих и детска площадка, което го прави отличен избор за семейно жилище или инвестиция.

Локация с удобен достъп на пешеходно разстояние от детска градина, хипермаркети и автобусна спирка.

Очакван Акт 16 края на 2027 г.

📞 За повече информация:
Ангел Катушев 0897 080 399
ЕЙЧ ЕЙЧ Пропърти
Особености
Тухла
Асансьор
Видео наблюдение
Контрол на достъпа
За контакт:
0897080399
Брокер:
Ангел Катушев
0897080399
Още оферти от брокера: Продава | Дава под наем | Купува | Наема
Агенция:
ЕЙЧ ЕЙЧ ПРОПЪРТИ ЕООД
0899 106 423
ЕЙЧ ЕЙЧ ПРОПЪРТИ ЕООД logo
Медал за прослужено време
В imot.bg от 2005 г.
hhproperties.imot.bg
Адрес:
област Пловдив, гр. Пловдив, Гр.Пловдив бул Мария Луиза 29
ИЗПРАТИ ЗАПИТВАНЕ
ИЗПРАТИ ЗАПИТВАНЕТО

Продава 2-СТАЕН
град Пловдив, Прослав
Обява: 1b177451766464989

93 000 €
181 892.19 лв.
История на цената
(1 257 €, 2 458.48 лв./m2)

Цената е с включено ДДС
ЗАПАЗИ ОБЯВАТА

Местоположение: град Пловдив, Прослав

Допълнителни данни за имотите в района и сравнение с други райони

Покажи

Период

и 5 месеца

* Средните цени са определени чрез медианна стойност