Обяви За нас Контакти
Продава 3-СТАЕН
град Пловдив, Христо Смирненски
МБАЛ Св. Георги
186 450 €
364 664.50 лв.

(1 650 €, 3 227.12 лв./m2)
Цената е с включено ДДС
История на цената
Коригирана в 10:07 на 29 януари, 2026 год.
Обявата е посетена 801 пъти.
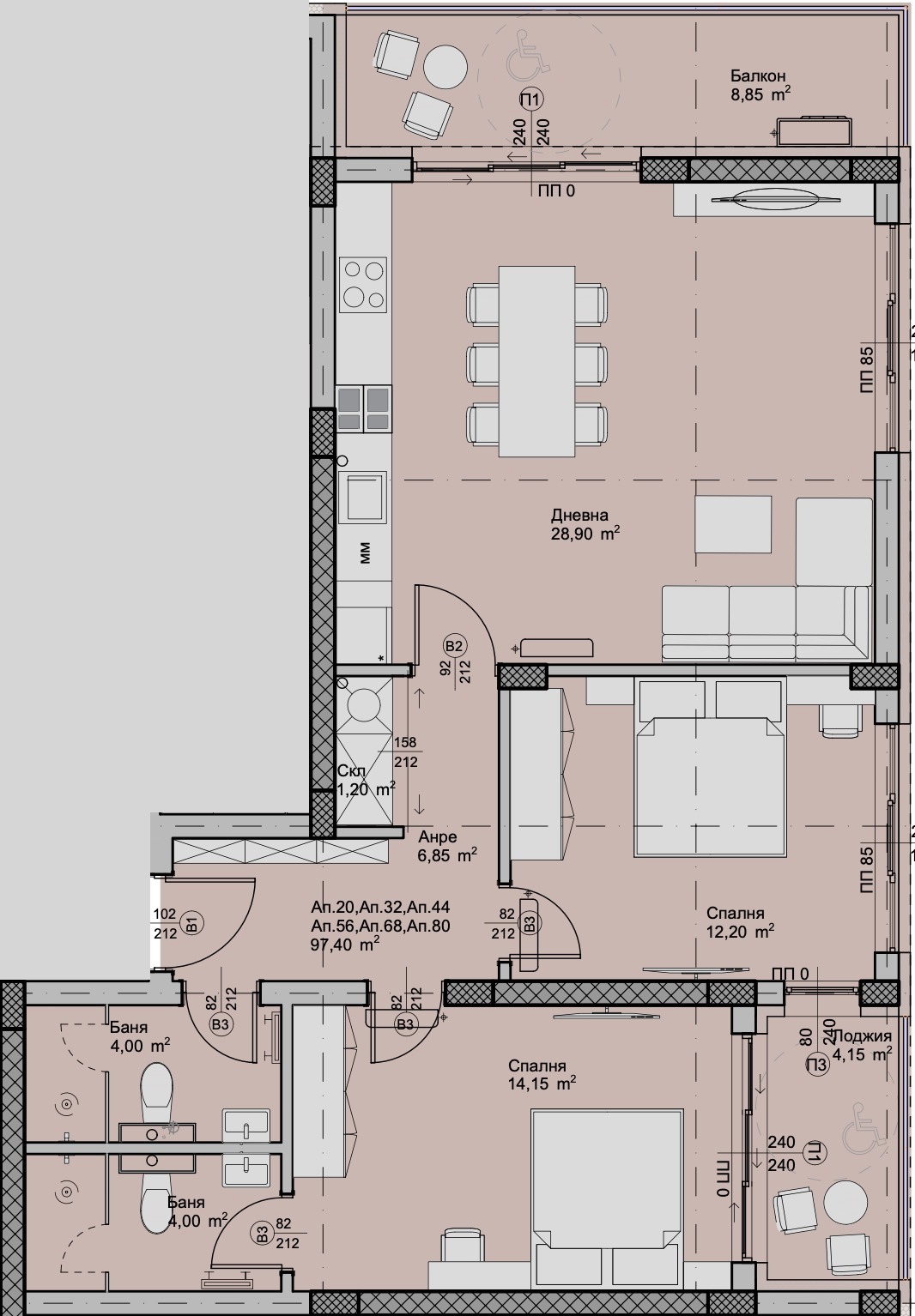
Площ:
113 m2
Етаж:
6-ти от 10
Строителство:
Тухла, Ще бъде въведен в експлоатация 2028 г.

Описание на имота:


10 % ПЪРВОНАЧАЛНА ВНОСКА !! - ЗАПОЧНАТО СТРОИТЕЛСТВО!!
ДИРЕКТНА ПРОДАЖБА ОТ ИНВЕСТИТОР - БЕЗ КОМИСИОННА !!
🏡Тристаен апартамент, в който ще се влюбите от пръв поглед !!
Мечтаете за дом, който съчетава стил, уют и тишина в подреден и зелен квартал?
📍 Представям ви тристаен апартамент с югоизточно изложение в новострояща се луксозна сграда

✨ Имота ще ви посрещне с просторно и светло дневно пространство, в което се сливат хол, трапезария и кухненски бокс идеално за уютни вечери, срещи с приятели и споделени моменти.

🛏️ Двете спални са с отлични размери идеални за семеен живот или работен кът.
🛁 Две големи бани с тоалетни по 4 кв.м. всяка комфорт и удобство за ежедневието ви.
🌿 А терасата? Перфектна за чаша кафе сутрин или чаша вино при залез.

✨ Локация с мисъл за семейството и ежедневието ти:
🛍️ 2 минути до Мол Пловдив кино, магазини и кафе с приятели
🏥 Близо до водещите болници в града Св. Георги, Каспела, Селена
🎓 Детски градини и училища на няколко крачки, без стрес сутрин
🌳 И разбира се Гребната база там, където Пловдивчани намират спокойствие, движение и вдъхновение

🌟 Изпълнението е на ниво:

Модерна фасада с HPL обшивки

Малко общи части и отлична енергийна ефективност

Контролиран достъп, зелени площи, сигурност и спокойствие

📅 Акт 16 2027 г.
🚗 Възможност за гараж или паркомясто
🏦 Пълно съдействие при кредитиране без такси

📞 Ако вярваш, че домът не е просто имот, а усещане това е твоят:
Петър Накаленов HH Property 2107
📱 0897 077 363
📧 imotpetar@gmail.com
Особености
Тухла
Асансьор
С гараж
С паркинг
Саниран
За контакт:
0897077363
Брокер:
Петър Накаленов
0897077363
Още оферти от брокера: Продава | Дава под наем | Купува | Наема
Агенция:
ЕЙЧ ЕЙЧ ПРОПЪРТИ ЕООД
0899 106 423
ЕЙЧ ЕЙЧ ПРОПЪРТИ ЕООД logo
Медал за прослужено време
В imot.bg от 2005 г.
hhproperties.imot.bg
Адрес:
област Пловдив, гр. Пловдив, Гр.Пловдив бул Мария Луиза 29
ИЗПРАТИ ЗАПИТВАНЕ
ИЗПРАТИ ЗАПИТВАНЕТО

Продава 3-СТАЕН
град Пловдив, Христо Смирненски
МБАЛ Св. Георги
Обява: 1c175069425771981

186 450 €
364 664.50 лв.
История на цената
(1 650 €, 3 227.12 лв./m2)

Цената е с включено ДДС
ЗАПАЗИ ОБЯВАТА

Местоположение: град Пловдив, Христо Смирненски, МБАЛ Св. Георги

Допълнителни данни за имотите в района и сравнение с други райони

Покажи

Период

и 2 месеца

* Средните цени са определени чрез медианна стойност