Обяви 0 За нас Контакти
Продава 3-СТАЕН
град Пловдив, Западен
ул. Рая
186 600 €
364 957.88 лв.

(1 651 €, 3 229.08 лв./m2)
Цената е с включено ДДС
История на цената
Коригирана в 15:29 на 11 май, 2026 год.
Обявата е посетена 856 пъти.
Площ:
113 m2
Етаж:
5-ти от 9
Строителство:
Тухла, Ще бъде въведен в експлоатация 2028 г.

Описание на имота:


БЕЗ КОМИСИОН! 10% ПЪРВОНАЧАЛНА ВНОСКА!

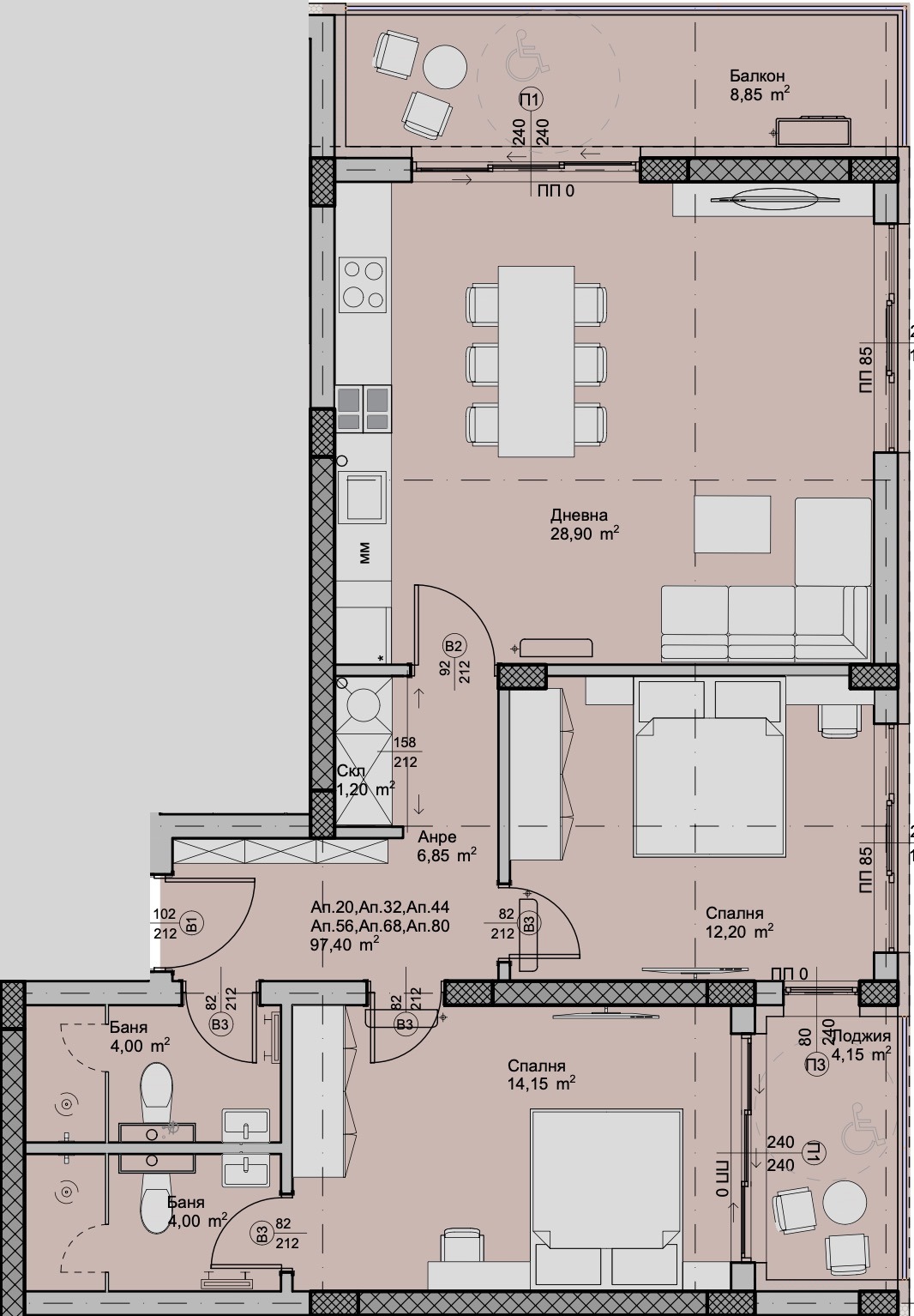
Предлагам за продажба просторен тристаен апартамент с площ 113,09 м² разположен на пети жилищен етаж в бъдеща сграда, позиционирана в най-предпочитаната зона на кв. Христо Смирненски, в близост до:

Гребен канал
УМБАЛ Св. Георги
МОЛ Пловдив
Училища и детски градини
Хипермаркети

📌 Разпределение на жилището:

Просторна дневна с трапезария и кухненски бокс 28,9 м²

Родителска спалня 14,15 м² със собствена баня с тоалетна 4 м²

Втора самостоятелна спалня 12,2 м²

Баня с тоалетна 4 м²

Склад 1,2 м²

Антре 6,85 м²

Балкон 8,85 м²

Лоджия 4,15 м²

✅ Етаж 5 от 9, удобна и предпочитана позиция в сградата
✅ Възможност за покупка на гараж или паркомясто
✅ Без комисионна от страна на купувача
✅ Подходящ за закупуване с банково финансиране

🏗️ Сградата е на кота 0, с планирано завършване и Акт 16 през 2028 г.
🔨 Изпълнява се от доказан инвеститор с успешно завършени обекти в Пловдив, използващ висококачествени материали и съвременни строителни технологии

💼 Имот с отличен потенциал както за собствено ползване, така и за инвестиция с висока доходност

📞 Свържете се с мен за повече информация - 0897 080 399 / Ангел Катушев
Особености
Тухла
Асансьор
За контакт:
0897080399
Брокер:
Ангел Катушев
0897080399
Още оферти от брокера: Продава | Дава под наем | Купува | Наема
Агенция:
ЕЙЧ ЕЙЧ ПРОПЪРТИ ЕООД
0899 106 423
ЕЙЧ ЕЙЧ ПРОПЪРТИ ЕООД logo
Медал за прослужено време
В imot.bg от 2005 г.
hhproperties.imot.bg
Адрес:
област Пловдив, гр. Пловдив, Гр.Пловдив бул Мария Луиза 29
ИЗПРАТИ ЗАПИТВАНЕ
ИЗПРАТИ ЗАПИТВАНЕТО

Продава 3-СТАЕН
град Пловдив, Западен
ул. Рая
Обява: 1c175101360931831

186 600 €
364 957.88 лв.
История на цената
(1 651 €, 3 229.08 лв./m2)

Цената е с включено ДДС
ЗАПАЗИ ОБЯВАТА

Местоположение: град Пловдив, Западен, ул. Рая

Допълнителни данни за имотите в района и сравнение с други райони

Покажи

Период

и 5 месеца

* Средните цени са определени чрез медианна стойност