Обяви За нас Контакти
Продава 4-СТАЕН
град Пловдив, Христо Смирненски
ДО МБАЛ Св. Георги
287 100 €
561 518.79 лв.

(1 650 €, 3 227.12 лв./m2)
Цената е с включено ДДС
История на цената
Коригирана в 10:11 на 29 януари, 2026 год.
Обявата е посетена 1323 пъти.
Площ:
174 m2
Етаж:
4-ти от 9
Строителство:
Тухла, Ще бъде въведен в експлоатация 2027 г.

Описание на имота:


10 % ПЪРВОНАЧАЛНА ВНОСКА !! - ЗАПОЧНАТО СТРОИТЕЛСТВО!!
ДИРЕКТНА ПРОДАЖБА ОТ ИНВЕСТИТОР - БЕЗ КОМИСИОННА !!
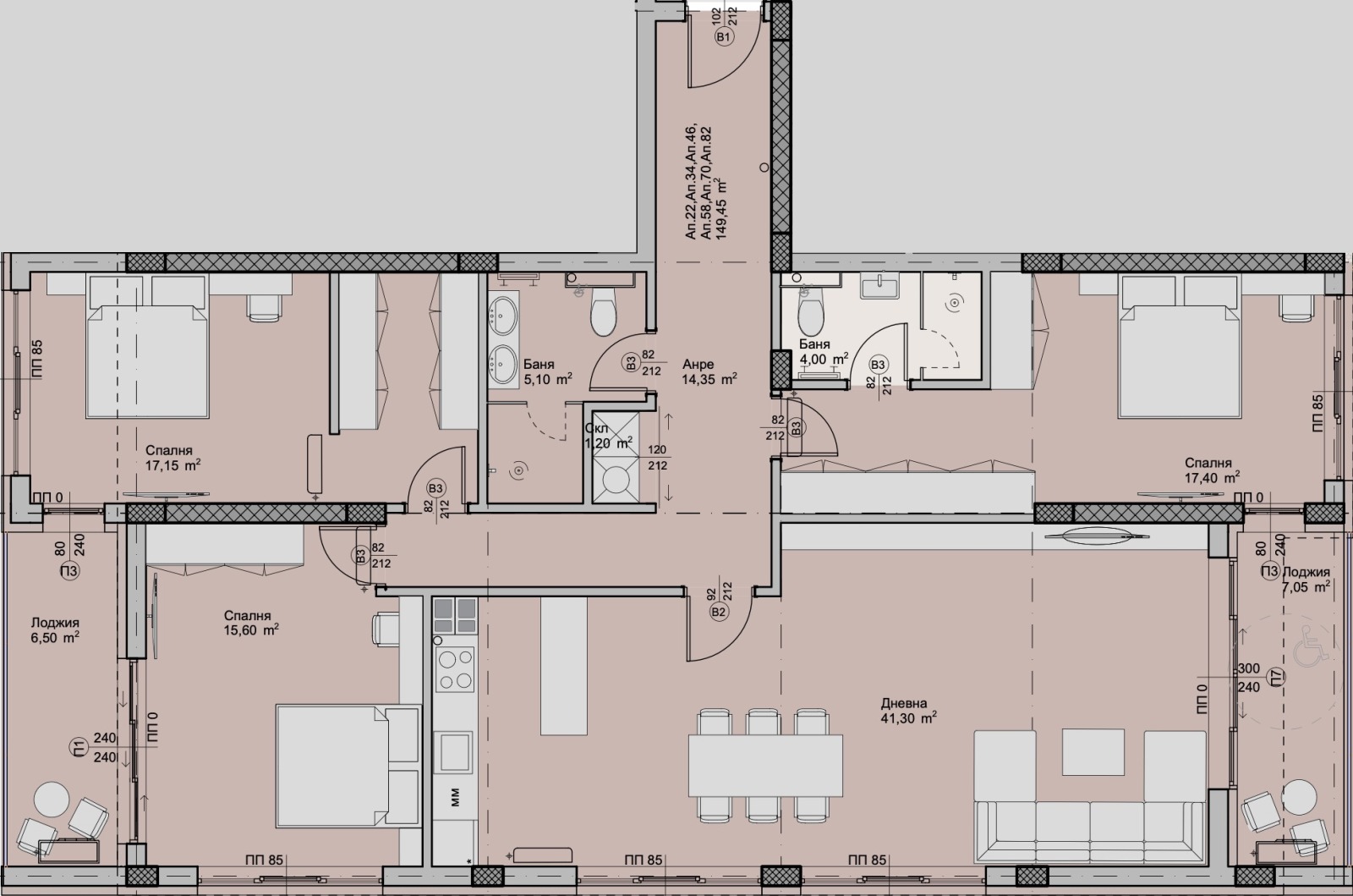
Многостаен апартамент с три спални в новострояща се сграда кв. Христо Смирненски, ул. Рая
Представям ви просторен многостаен апартамент, разположен в модерна жилищна сграда с изключително качествено изпълнение, на тиха и зелена улица в кв. Христо Смирненски една от най-предпочитаните зони за живеене в Пловдив.
Локацията осигурява бърз достъп до градски транспорт, училища, детски градини, супермаркети и паркове.

🧱 Сградата се отличава с:
Съвременна архитектурна визия и премиум фасадни материали (вентилируема фасада с HPL)

Високо качество на строителство от утвърден инвеститор с доказан опит

Минимален процент общи части

Контролиран достъп и възможност за видеонаблюдение

Озеленена околна среда, подходяща за спокоен и качествен начин на живот

🏠 Разпределение на апартамента:
Просторно входно антре с обособен склад

Голям хол с кухненски бокс 41 кв.м.

Три самостоятелни, светли спални

Две бани с тоалетни

Две тераси, с достъп от дневната и спалните

Изложение, осигуряващо естествена светлина през целия ден

Френски прозорци и високи тавани за усещане за обем и комфорт

Апартаментът е проектиран с мисъл за семейства, които ценят пространството, светлината и функционалността.

🚗 Допълнително:

Възможност за закупуване на подземни гаражи и паркоместа
📅 Акт 16 планиран за 2027 г.
🏦 Подходящ за банково кредитиране съдействие при нужда, без допълнителни такси

📞 За повече информация и огледи:
Петър Накаленов консултант с 12 години опит в продажба на ново строителство
📱 Телефон: 0897 077 363
📧 Email: imotpetar@gmail.com

Особености
Тухла
Асансьор
С гараж
С паркинг
Контрол на достъпа
Саниран
За контакт:
0897077363
Брокер:
Петър Накаленов
0897077363
Още оферти от брокера: Продава | Дава под наем | Купува | Наема
Агенция:
ЕЙЧ ЕЙЧ ПРОПЪРТИ ЕООД
0899 106 423
ЕЙЧ ЕЙЧ ПРОПЪРТИ ЕООД logo
Медал за прослужено време
В imot.bg от 2005 г.
hhproperties.imot.bg
Адрес:
област Пловдив, гр. Пловдив, Гр.Пловдив бул Мария Луиза 29
ИЗПРАТИ ЗАПИТВАНЕ
ИЗПРАТИ ЗАПИТВАНЕТО

Продава 4-СТАЕН
град Пловдив, Христо Смирненски
ДО МБАЛ Св. Георги
Обява: 1d175068554924415

287 100 €
561 518.79 лв.
История на цената
(1 650 €, 3 227.12 лв./m2)

Цената е с включено ДДС
ЗАПАЗИ ОБЯВАТА

Местоположение: град Пловдив, Христо Смирненски, ДО МБАЛ Св. Георги

Допълнителни данни за имотите в района и сравнение с други райони

Покажи

Период

и 3 месеца

* Средните цени са определени чрез медианна стойност